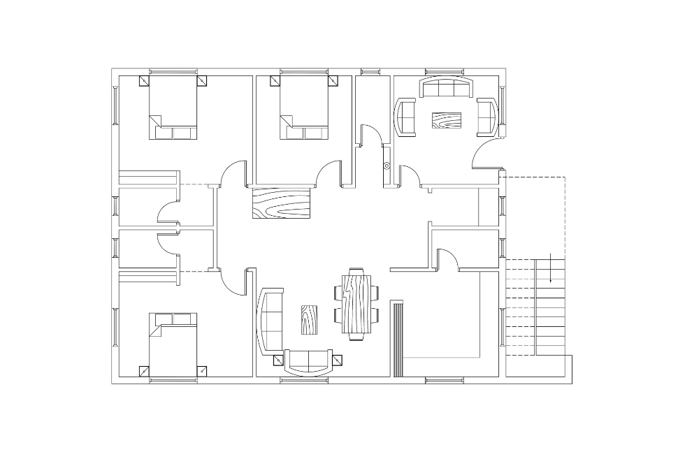
תוכנית חלוקה: משוואה קלה- מספר חדרים כגודל המשפחה. האומנם?

כבסיס, הכותרת קולעת בול למטרה, אך למעשה לא די בכך, כי מספר חדרים צריך להתאים לכם וגם לכל הפעילויות המשפחתיות שלכם

השלב הראשון בעיצוב הבית זה חלוקה לחדרים, זה נכון אם רכשתם דירה או שלרשותכם שטח אותו תחלקו למספר חדרים כרצונכם. כשלמעשה מחלקים את הדירה לשני חלקים- המרחב החברתי שנועד לשעות הפנאי, בילוי ואירוח. והוא כולל את הסלון, מטבח, ופינת אוכל ואולי גם חדר משפחה. והחדרים הפרטיים: חדרי שינה, רחצה, עבודה. על מה עוד צריך לחשוב ועל מה אפשר לוותר. לפניכם 10 שאלות ו- 10 תשובות

Copy of תמונה לתוכן הכתבה

1. האם די במספר חדרים כמספר בני המשפחה?

התשובה היא כן ולא, כי אם כבר עוברים לדירה חדשה תשפרו את תנאי החיים. תתכננו חדרים ייעודיים למיני פעילויות משפחתיות או אישיות שעד עכשיו שולבו איכשהו בבית. לדוגמה, חדר עבודה, מזווה, חדר ארונות  או חדר משפחה.

חדר משפחה עם ספרייה

3
צילום: אלעד גונן | עיצוב: ענבל ברקוביץ

2. אם שני הילדים מעדיפים לישון ביחד למה צריך עוד חדר?

כי ילדים גדלים מהר מאוד. בחלוף כמה שנים בודדות, אחד או אחת מהם מחפש  פרטיות. עד אז, החלוקה לחדרים תהיה, חדר אחד לשינה, שיכול להיות יחסית די עמוס, עם שתי מיטות ארון ושני שולחנות, כי החדר השני, שלימים יהפוך לחדר שינה פרטי, ישמש בינתיים לחדר משחקים מרווח. אחרי המעבר, כשתצא מיטה אחת ואולי גם שולחן, שני החדרים יהיו מרווחים דיים לתנועה, פעילות ואפילו אירוח חברים.

3. מה כל כך חשוב בחדר משפחה ?

כי לא בא לכם שהסלון יראה כמו ג'מבורי, ויחד עם זאת, כשאתם עסוקים בפעילות כלשהי במרכז הבית, הילדים יהיו קרובים אליכם. הם ייהנו מנוכחותכם  ואתם תוכלו להשגיח על מעשיהם. מה גם שחדר משפחה נועד לפעילות משפחתית משותפת. לכן כשאתם מחשבים את גודלו קחו בחשבון שיהיה נוח למשחקים משותפים, קריאה ואם תרצו תשלבו גם טלוויזיה. לכל אלה נדרשים מקומות אחסון רבים ונוחים לגישה, ואל תשכחו שטיח, כי ילדים אוהבים לשבת על הרצפה. בחשיבה לעתיד, חדר המשפחה יוכל לשמש את כל המשפחה כחדר עבודה על מחשב.

חדר שמפחה עם מקומות אחסון נוחים לילדים

6
צילום: יונתן תמיר | עיצוב: ליאת לי

4. האם, מתי ולמה כדאי לוותר על מסדרון ?

וויתור על מסדרון יכול להיות כשמתקיימים שני תנאים, האחד, כשבתוכנית הבית ניתן להפריד בין האזור החברתי לאזור הפרטי באמצעות מרחב קטן שמחבר בין כל חדרי השינה, אותו, דרך אגב אפשר לנצל לפינת טלוויזיה לילדים. או אם תרצו זו יכולה להיות אופציה נוספת לפינת משפחה. השני, אם חדרי השינה מספיק גדולים להכיל גם את ארונות הבגדים, ובכלל אם יש בבית מספיק מקומות אחסון, כי המסדרון, זה מקום אידיאלי לארונות.

ארונות לכל אורך המסדרון

14
צילום: ליאור טייטלר | עיצוב: שלומי לוין

5. איך אפשר להגדיל את שטח המרחב החברתי ?

באמצעות וויתורים. שתי אופציות עומדות בפניכם כברירה, פינת אוכל או האי שכל כך רציתם. אם ברור לכם שכמעט תמיד תאכלו ליד דלפק האי שהמטבח, אל תוותרו עליו, אבל אם בכל ערב שבת וגם באמצע השבוע אתם יושבים בפינת האוכל תוותרו על האי. או שאת פינת האוכל תוציאו למרפסת. אם ויתרם על פינת האוכל, למקרים נדירים בהם תרצו לארח לסעודה, יש פתרונות, ביניהם לדוגמה, קונסולה שנפתחת לשולחן.

סלון ומטבח בלי פינת אוכל

10
צילום: בן רוטשטיין | עיצוב: סטודיו טו

6. האם חייבים  שירותי אורחים ?

בגדול כן במיוחד שזה תא יחסית קטן, אורך כמטר וחצי, רוחב כמטר. בתכנון החדר חשוב לשים לב שפתיחת הדלת תהיה נוחה והאורחים לא יצטרכו להשתחל פנימה, מה שמשפיע על גודל התא הם ממדי האסלה. רצוי לשלב כיור לשטיפת ידים,  שומרי מסורת, קחו בחשבון שטח למבואה קטנה בה ימוקם כיור לנטילת ידים. ודרך אגב, בתשובה לשאלה, אפשר לוותר על שירותי אורחים, במידה וחדר הרחצה של הילדים קרוב לאזור האירוח. את שטח שירותי האורחים מצרפים למבואת כניסה, סלון, פינת אוכל או מטבח הכול לפי הצורך שלכם.

שירותי אורחים עם כיור

13
צילום: עינת דקל | עיצוב: עליזה כהן

7. האם בחלוקה לחדרים חשוב לשלב גם מבואת כניסה ?

התשובה מאוד אינדיבידואלית. בכל מקרה כדאי לשלב מבואת כניסה וזאת משתי בחינות. פרקטית – מקום להניח את המפתחות, הדואר (בדרך כלל חשבונות), התיקים והמעילים בחורף, ואפילו לחלוץ נעלים.  מבחינת אווירה- מרכך ומעדן את המעבר מהחוץ פנימה. בזכות מבואת כניסה לא "נופלים" ישירות אל תוך הסלון או פינת האוכל.

מבואת כניסה עם נישה לישיבה

8
צילום: ניצן הפנר | עיצוב: מאיה האזרחי

8. האם מרפסת שרות הצמודה למטבח זה בזבוז מקום?

תלוי מה רוצים שיהיה בה, מצד אחד זה שטח שיכול להישאר כמרפסת. מצד שני אפשר להפוך אותה לחדר שימושי שיפנה לכם מקום בתוך הדירה כגון: מכונת כביסה וייבוש. מטבח פעיל בו יתבצעו טיגונים ובישולים ארוכים, ומסביב להוסיף מדפים או ארונות ואז היא תהפוך למזווה. ואפשר לעצב אותה כפינת ישיבה לשתיית הקפה של הבוקר. בהתאם לצרכים שתיעדו לה תחליטו על הגודל המתאים, אם זה לא נתון שקיבלתם כעובדה ברכישת הדירה.

מעבר למרפסת שרות עם כיריים גז

3
צילום: מאור מויאל | עיצוב: אורן ביטון

9. איפה הכי כדאי למקם את חדר השינה של ההורים ?

מה שיותר רחוק יותר טוב. אם יש מסדרון, תבחרו את קצהו המרוחק. אם אין, תרכזו את חדרי הילדים אחד ליד השני ואת החדר שלכם באחת מהפינות. מה שעוד יכול להועיל, זה חדר הרחצה של הילדים שיוצמד לקיר חדר רחצה שלכם , גם המרחק יגדל וגם תוכלו לנצל  את מערכת האינסטלציה שבתוך הקירות לשני חדרי הרחצה.

חדר שינה הורים

12
צילום: סיוון מויאל | עיצוב: אירית בר גיל

10.חדר רחצה בתוך חדר השינה או בחדר נפרד?

עדיף שחדר הרחצה של ההורים יהווה חלק בלתי נפרד מיחידת המגורים האינטימית שלהם. אפשר לתכנן אותו כהמשך החדר כשהוא מופרד על ידי קיר זכוכית שקופה, ובכך תחושת המרחב תגדל ואפשר לחצוץ בין שני החדרים באמצעות קיר בנוי. אותו הדין לגבי האחסון. אם השטח מספיק לחדר ארונות זה נהדר אם לא אפשר לנצל את הקירות משני צידי המיטה ומולה לארונות קיר גדולים.

 

חדר רחצה הורים

2
צילום: מאור מויאל | עיצוב: אורן ביטון

לסיום – עצה חשובה נכונה לכל הדירה 

בעת החלוקה לחדרים בכל מקום אפשרי אם זה בחדרי השינה, בחדר משפחה, במסדרון, במרחב החברתי ואפילו בסלון, כל הזמן תחשבו על מקומות אחסון, כמה שיותר זה יותר טוב. בהצלחה !

ארונות אחסון גם בסלון

4
צילום: פיק וויז'אן | עיצוב: יארה חאכים

ארונות אחסון גם בסלון

ארונות אחסון גם בסלון

ארונות אחסון גם בסלון

ארונות אחסון גם בסלון

ארונות אחסון גם בסלון

ארונות אחסון גם בסלון

ארונות אחסון גם בסלון

ארונות אחסון גם בסלון

ארונות אחסון גם בסלון

ארונות אחסון גם בסלון

ארונות אחסון גם בסלון

ארונות אחסון גם בסלון

ארונות אחסון גם בסלון

ארונות אחסון גם בסלון

ארונות אחסון גם בסלון

ארונות אחסון גם בסלון

ארונות אחסון גם בסלון

ארונות אחסון גם בסלון

תגובות

כתיבת תגובה

האימייל לא יוצג באתר. שדות החובה מסומנים *