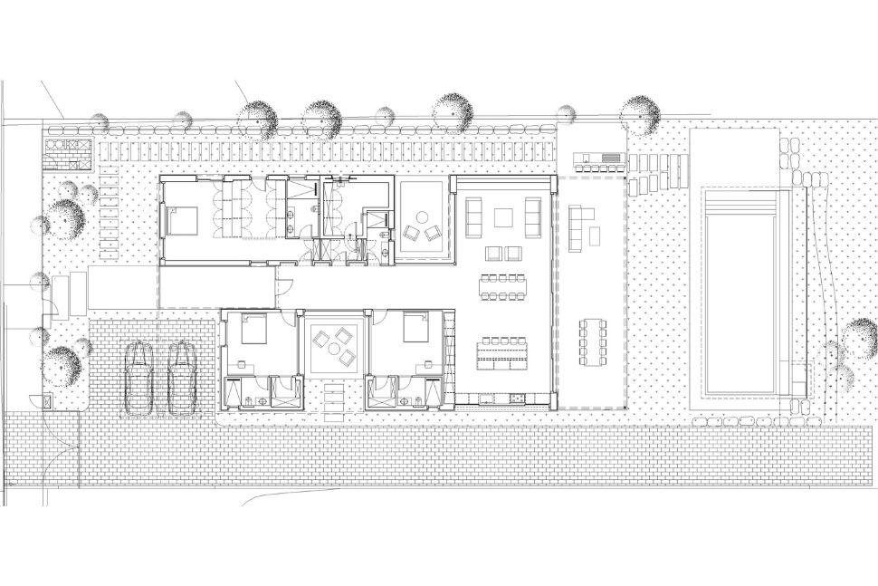
בבנימינה, המושבה החקלאית שנוסדה לפני 100 שנה בכספי הנדבן הברון רוטשילד, ביקשו זוג הורים לשתי בנות בוגרות, מהאדריכל והמעצב איציק ניב, שיתכנן ויבנה להם בית מודרני ועכשווי. תכנון פנים הבית צריך להכיל מרחבים גדולים לבילוי ואירוח, שלוש סוויטות פרטיות, שתיים לבנות ואחת להם. לכאורה בית רגיל, אבל כאן הגיע האתגר הגדול. תכנון הבית ומראהו החיצוני חייב להתאים לסביבתו הכפרית ההיסטורית.
פינת אוכל מודרנית, בין המטבח לסלון
במנהרת הזמן
בתחילה מתרשמים מחזית הבית החדש, שנראה כבית שנבנה במאה שעברה אך עבר שיפוץ ומתיחת פנים. פותחים את הדלת הכניסה המחופה אבן גרניט שחורה, ובבת אחת נכנסים למאה ה-21. מסדרון רחב וארוך מוביל למרחב החברתי שנמצא בחלקו האחורי של הבית, אל מול מרחבי הנחלה, שבעבר הייתה שייכת לאחת ממשפחות מקימי המושבה. ליצירת מעבר מעניין ולא מסדרון אטום וחסר עניין, עוצבו לאורכו שתי חצרות פטיו פרטיות.

תוצאה מעלפת - מרווח,מואר,נוח,מכיל הרבה אחסון. עטיפה וחומרים חמימים,נוחים.
מדהים , חומרים טבעיים, עבודה ברמה , מחשבה נכונה , תכנון אדריכלי מושקע. שיתוף פעולה בין האדריכל לבעלי הבית עשה את זה ״שאפו״
מושלם ! עבודה נהדרת ! רק מילים טובות !
מהמם
מיוחד במינו, בית נדיר
מקסים וברמה גבוהה. מעניין כמה עולה שיפוץ כזה...........
בית מהמם ברמה גבוהה! מעניין כמה עולה בנייה כזו..........
בית מהמםם!!!
עיצוב מהמם של הבית ושל הגינה
מושלם. מאיפה פינת האוכל?
אין מה לומר באמת מושלםם ממש חשב על הכל וחשיבה יצירתית ומיוחדת
וואו, הבית הזה פשוט מדהים! כל דבר כאן מדויק. אהבתי את הסגנון. המקום משרה אווירה חמימה ונעימה שבא להיות שם. ממש כיף לראות מקום כל כך יפה!